Se illustrasjoner av Nye Sunndal helsetun - Sunndal kommune

Se illustrasjoner av Nye Sunndal helsetun

Sunndal kommune vil presentere forprosjektet for Nye Sunndal helsetun for Oppvekst og omsorgsutvalget 27.08.2025. I denne artikkelen kan du se et utdrag fra forprosjektsrapporten. 

Noen av høydepunktene i forprosjektet til det nye helsetunet innebærer:

  • 32 omsorgsleiligheter i bofellesskap
  • 76 institusjonsplasser i helsehuset + 4 nye - totalt 80
  • arealer for personale, administrasjon og hjemmetjenesten, samt et storkjøkken og en tilhørende kantine
  • Utvendig finnes sansehager, møteplasser og områder for lek
  •  Grønne omgivelser som flettes inn mellom byggene 

Den fullstendige forprosjektrapporten  (PDF, 24 MB)

Stjerna 

«Stjerna» utgjør første byggetrinn i Nye Sunndal helsetun, og består av 60 + 4 institusjonsplasser fordelt på to etasjer.

Pasientrommene er fordelt på fire fløyer med egne, definerte uterom mellom. Pasientrommene ligger langs ytterveggene i fløyene for maksimalt dagslysinnslipp og utsikt til gårdsrommene, mens fellesstuende er lagt til de indre hjørnene. Fløyene er parvis koblet sammen slik at ett enkelt bemannet postkjøkken enkelt kan betjene to fellesstuer. 

Planutsnitt av Stjerna 1. etg., med tilhørende utomhuskonstruksjoner og glassbygg mot Felleshuset.  - Klikk for stort bildePlanutsnitt av Stjerna 1. etg., med tilhørende utomhuskonstruksjoner og glassbygg mot Felleshuset.

Glassbygg og tak 

Arbeidsrom, kontorer og stillerom for de ansatte er lagt til østsiden av bygget. Her ligger også et treetasjes glassbygg som fungerer som hovedinngang for besøkende og ansatte i byggetrinn 1, og utgjør grensesnittet mot byggetrinn 2. Glassbygget inneholder både trapp og heis, og 3. etasje av glassbygget gir tilkomst til tekniske rom som ligger på loftet av stjerna.  

Felleshuset

Mens stjerna utgjør byggetrinn 1, så utgjør felleshuset og omsorgsboligene byggetrinn 2. Felleshuset ligger på øst for stjerna og glassbygget, og består av to bygningsvolum som overlapper hverandre. Mot Ole Bruseths veg ligger et treetasjes bygg med publikumsrettede funksjoner, orientert øst-vest. Langs Ringvegen ligger en toetasjes bygningsmasse orientert nord-sør, og innehar mer innadrettede funksjoner.  

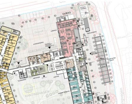
Planutsnitt av Felleshuset 1. etg. med glassbygg mot Stjerna, logistikkgård i øst, samt hovedadkomst mot nord.  - Klikk for stort bildePlanutsnitt av Felleshuset 1. etg. med glassbygg mot Stjerna, logistikkgård i øst, samt hovedadkomst mot nord.

Omsorgsboliger i bofellesskap

Sør mot Ringvegen 17 ligger et bofellesskap med 32 omsorgsboliger. Bofellesskapet er et toetasjes bygg, organisert i to fløyer, hver med 8 omsorgsleiligheter liggende mot en fellesstue. De to fellesstuene ligger mot et felles postkjøkken på samme måte som institusjonsavdelingene.  

I navet mellom fløyene ligger støttefunksjoner som toaletter, skyllerom og arbeidsrom for ansatte, samt en kjerne med trapp og heis. Adkomst for besøkende skjer fra logistikkgården i øst. 

Planutsnitt av Omsorgsboligene i bofellesskap 1. etg, med tilhørende uteareal og overgang til Ringvegen 17.  - Klikk for stort bildePlanutsnitt av Omsorgsboligene i bofellesskap 1. etg, med tilhørende uteareal og overgang til Ringvegen 17.